муфени тръби

spacer

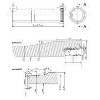
тръби стоманобетонни муфени канализационни с интегриран уплътнител, L=2,5 m – нисконапорни БДС EN 1916 за уплътнители EN 681-1

spacer
2008-08-22-15-18-31-product_image_1-m1.jpg
zoom
2008-08-22-15-18-31-product_image_2-m2.jpg
zoom
2008-08-22-15-18-31-product_image_3-m3.jpg
zoom
номенкл. № наименование дължина диаметър тегло клас налягане
m. /бр. m. /бр. т. /бр. P разр.
10100100 ТСБМК Ф 300 х 2500 , d=75 2.50 0.30 0.592 1 48.00
10100300 ТСБМК Ф 500 х 2500 , d=80 2.50 0.50 0.930 1 45.00
10100200 ТСБМК Ф 400 х 2500 , d=80 2.50 0.40 0.803 1 53.00
10100400 ТСБМК Ф 600 х 2500 , d=85 2.50 0.60 1.318 1 45.00
10100500 ТСБМК Ф 800 х 2500 , d=94 2.50 0.80 2.006 1 51.00
10100600 ТСБМК Ф 1000 х 2500 , d=124 с монтажни анкери 2.50 1.00 3.147 1 53.00
10100700 ТСБМК Ф 1200 х 2500 , d=139 с монтажни анкери 2.50 1.20 4.308 1 51.00

Тръби стоманобетонни муфени канализационни с интегриран уплътнител L=2,5 m 1.Приложение:Предварително отляти \ТСБМК\ с интегриран гъвкав уплътнител са предназначени за изграждането на отводнителни и канализационни безнапорни и нисконапорни системи за пренос на канализационни, дъждовни и третирани промишлени отпадъчни води. 2.Проектиране:Използването и полагането на тръбите на всеки строеж се извършва по инвестиционен проект-предварително изготвен и утвърден в съответствие със съществуващия законов ред и при спазването на актуалните строителни и нормативни документи. 3.Монтаж:Тръбите се монтират в проектно положение на предварително направена пясъчна възглавница или излят подложен бетон В 15 като ъгълът,който се формира е от 90°-120º.Тръбите се втикват чрез плъзване.Областите, в които се намират уплътнителите се почистват преди сглобяването.Смазката за приплъзване се поставя върху този край на тръбата, в който няма поставен уплътнител т.е. върху бетона. Съединяването на тръбите започва от най–крайната,най-дълбоката част на тръбопрово да. Всяка тръба, особено първата трябва да е добре центрирана,а силата с която става плъзването трябва да бъде внимателно контролирана. Всяка следваща тръба ,която ще се плъзва в предната трябва да е повдигната и да виси свободно. За да се предотврати повреждането на еластомерните уплътнители ,е необходимо да се използват специални уреди. Плъзването на тръбите чрез захващане с багер води до увреждането им. Разстоянието между крайните точки на две тръби трябва да е поне 5 мм. Тръбите за отпадни води в общия случай се свързват по права линия между две шахтови съоръжения. Промяната на посоката ,ако е необходима се извършва от шахтовите съоръжения. Възможно е да се правят извивки по трасето, чрез предварително отлети закривени изделия. Проектното положение на тръбите ,се контролира геодезически. 4.Експлоатация и поддръжка:Проектния експлоатационен срок на тръбите произведени по тоя стандарт е много висок .През експлоатационния период специални грижи за поддържането им не са необходими.

тръби бетонни муфени канализационни с интегриран уплътнител, L=2,5 m - безнапорни БДС EN 1916 за уплътнители EN 681-1

spacer
2008-08-22-16-29-26-product_image_1-m1.jpg
zoom
номенкл. № наименование дължина диаметър тегло налягане
m. /бр. m. /бр. т. /бр. P разр.
11100300 ТБМК Ф 500 х 2500 , d=80 2.50 0.50 0.880 40.00
11100200 ТБМК Ф 400 х 2500 , d=80 2.50 0.40 0.755 43.00
11100100 ТБМК Ф 300 х 2500 , d=75 2.50 0.30 0.548 40.00
11100400 ТБМК Ф 600 х 2500 , d=85 2.50 0.60 1.242 40.00
11100500 ТБМК Ф 800 х 2500 , d=94 2.50 0.80 1.860 41.00
11100600 ТБМК Ф1000 х 2500 , d=124 с монтажни анкери 2.50 1.00 3.099 48.00
11100700 ТБМК Ф1200 х 2500 , d=139 с монтажни анкери 2.50 1.20 4.131 48.00

Тръби бетонни муфени канализационни с интегриран уплътнител L=2,5 m 1.Приложение:Предварително отляти ''ТБМК'' с интегриран гъвкав уплътнител са предназначени за изграждането на отводнителни и канализационни безнапорни и нисконапорни системи за пренос на канализационни, дъждовни и третирани промиш лени отпадъчни води. 2.Проектиране:Използването и полагането на тръбите на всеки строеж се извършва по инвестиционен проект-предварително изготвен и утвърден всъответствие със съществуващия законов ред и при спазването на актуалните строителни и нормативни документи. 3.Монтаж:Тръбите се монтират в проектно положение на предварително направена пясъчна възглавница или излят подложен бетон В 15 като ъгълът, който се формира е от 90°-120º.Тръбите се втикват чрез плъзване.Областите, в които се намират уплътнителите се почистват преди сглобяването.Смазката за приплъзване се поставя върху този край на тръбата, в който няма поставен уплътнител т.е. върху бетона. Съединяването на тръбите започва от най–крайната, най-дълбоката част на тръбопровода. Всяка тръба, особено първата трябва да е добре центрирана, а силата с която става плъзването трябва да бъде внимателно контролирана. Всяка следваща тръба ,която ще се плъзва в предната трябва да е повдигната и да виси свободно. За да се предотврати повреждането на еластомерните уплътнители ,е необходимо да се използват специални уреди. Плъзването на тръбите чрез захващане с багер води до увреждането им. Разстоянието между крайните точки на две тръби трябва да е поне 5мм. Тръбите за отпадни води в общия случай се свързват по права линия между две шахтови съоръжения. Промяната на посоката ,ако е необходима се извършва от шахтовите съоръжения. Възможно е да се правят извивки по трасето, чрез предварително отлети закривени изделия. Проектното положение на тръбите ,се контролира геодезически. 4.Експлоатация и поддръжка:Проектния експлоатационен срок на тръбите произведени по тоя стандарт е много висок .През експлоатационния период специални грижи за поддържането им не са необходими.

тръби стоманобетонни муфени двойно армирани за пътни и жп водостоци БДС EN 1916

spacer
номенкл. № наименование дължина диаметър тегло налягане
m. /бр. m. /бр. т. /бр. P разр.